Quartier Dame BlancheBruxelles





Description du projet
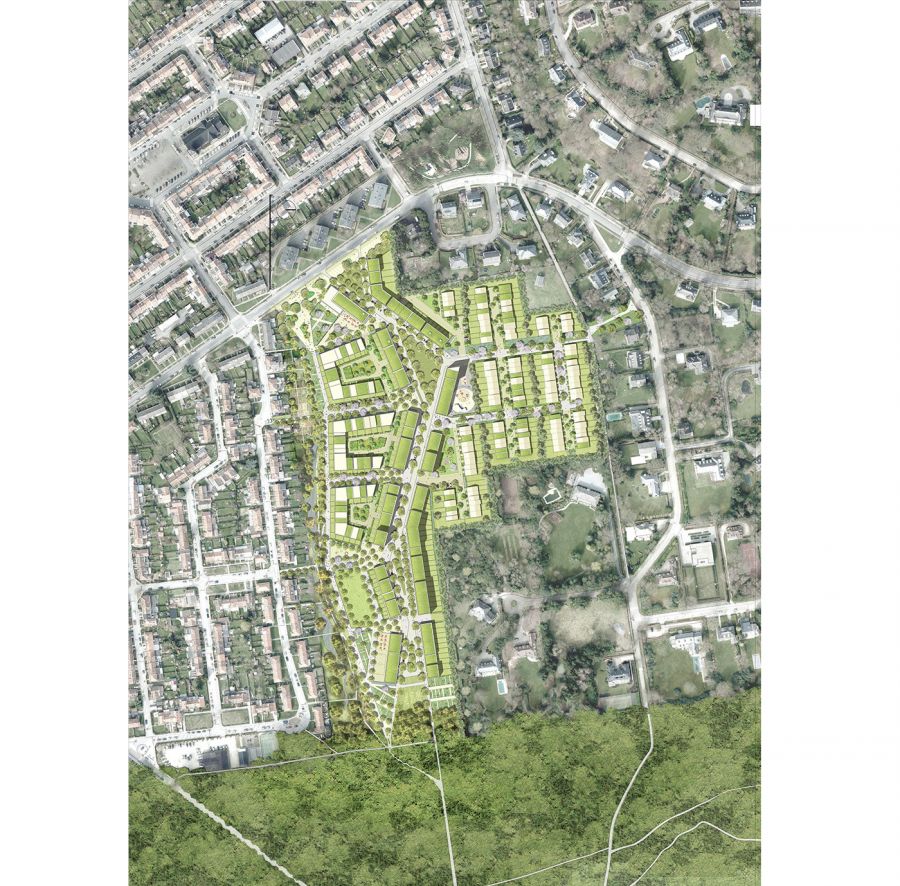
Situé au sud-est de Bruxelles, à la jonction entre la ville et la nature, le quartier de la Dame Blanche a pour ambition de transformer une dent creuse en un quartier exemplaire, conjuguant intégration paysagère, respect de l’environnement et qualité de vie.
Reliant la ville à la Forêt de Soignes, il réinvente le concept de cité-jardin en proposant un quartier-parc distribuant maisons en bande et petits collectifs autour de cours et de jardins partagés.
Le quartier prolonge la Forêt de Soignes dans les épaisseurs du tissu, depuis les lisières du quartier jusque dans les espaces publics, les cours collectives et les jardins privés. Cette idée de nature s’exprime à travers une diversité d’aménagements paysagers favorisant la biodiversité et l’appropriation par les habitants.
Le projet déploie ainsi une richesse d’espaces publics favorisant les interactions sociales et la convivialité :
- une clairière accueillante à l’entrée du quartier, dotée de jardins potagers et d’aires de jeux ;
- un réseau de places-bosquets inspirées du vocabulaire forestier, offrant des lieux divers ouverts à de multiples usages ;
- un fond de vallon paysager conçu telle une rivière gérant les eaux pluviales à ciel ouvert, élément écologique vivant au rythme des saisons et des hauteurs d’eau et enrichissant l’écosystème local.
Les chemins et les pistes dessinent un maillage invitant à découvrir le quartier à pied ou à vélo. La voiture occupe une place secondaire au bénéfice d’un cadre de vie apaisé, avec une offre réduite de stationnement, discrètement intégrée.
Le projet se fonde sur une gestion durable des ressources naturelles :
- la gestion de l’eau à ciel ouvert contribue à la réduction des risques d’inondation tout en créant un parcours paysager vivant ;
- les jardins partagés et les potagers favorisent une alimentation locale et des pratiques collectives ;
- l’intégration paysagère renforce les continuités écologiques entre le quartier et la forêt.
Ce projet propose une urbanisation responsable, où la nature n’est pas seulement préservée mais devient un acteur central de la vie quotidienne. En créant des liens fluides entre espaces naturels, espaces publics et habitations, le quartier-parc de la lisière de la Forêt de Soignes offre une nouvelle manière de vivre la ville à hauteur d’homme, dans le respect de l’environnement.
Spécifications
- Statut : Livré
- Maîtrise d’ouvrage : SLRB
- Mission : Concours
- Surface : 7 ha
- Équipe : Praxys Paysage & Urbanisme, B612 urbaniste, Stratec, Aster, Christian Lasserre